
Проект житлового будинку з мансардним поверхом і балконом розроблений для комфортного проживання сім'ї, поєднуючи функціональне планування та сучасну архітектуру.
Характеристики проекту:
-
Площа забудовки: 113,95 м2
-
Загальна площа: 175,89 м2
-
Будівельний об'єм: 684 м3
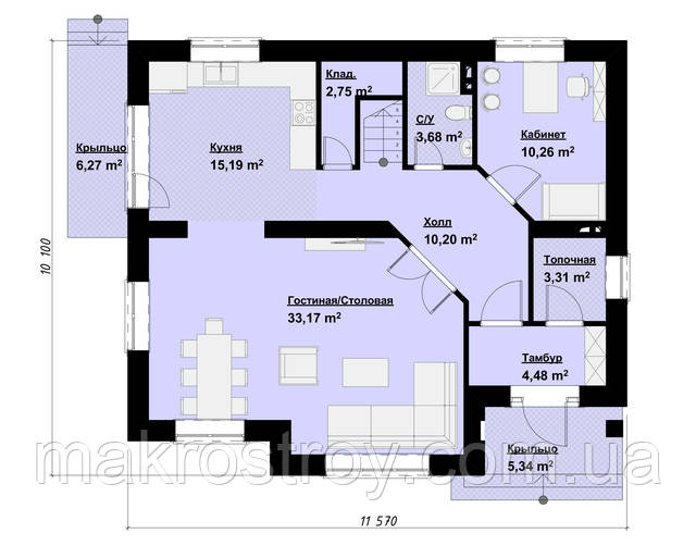
На першому поверсі розташовані загальні зони: вітальня, кухня-столова, санвузол і технічні приміщення. З вітальні передбачений вихід на терасу або двір, що створює додатковий простір для відпочинку на свіжому повітрі.
Мансардний поверх використовується як приватна зона та містить спальні, ванну кімнату та хол. Балкон забезпечує можливість насолоджуватися відкритим простором і природним освітленням, а також розширює функціональність приміщень.
Будинок спроєктований з урахуванням комфорту, раціонального використання площі, природного освітлення і зручної циркуляції між приміщеннями. Проект може бути адаптований під індивідуальні вимоги ділянки, кліматичні умови та побажання замовника.


| Основні | |
|---|---|
| Проектування котеджних селищ | Так |
| Типи будівель по матеріалу | Цегляні |
| Тип будівлі | Мансардний |
| Ціна будівництва | |
| Вартість фундаменту | 68 000 грн. |
| Вартість монолітної плити першого поверху | 35 000 грн. |
| Вартість стін з газоблоку | 250 000 грн. |
| Перекриття залізобетонне зборное | 63000 грн |
| Покрівельні роботи по виду матеріалу | 166 500 грн. |
| Утеплення фасаду мінеральної ватою з оздобленням | 145 600 грн. |
| Всього вартість будівництва | 728 100 грн. |
- Ціна: 26 000 ₴

