
Проект приватного житлового будинку з мансардним поверхом.
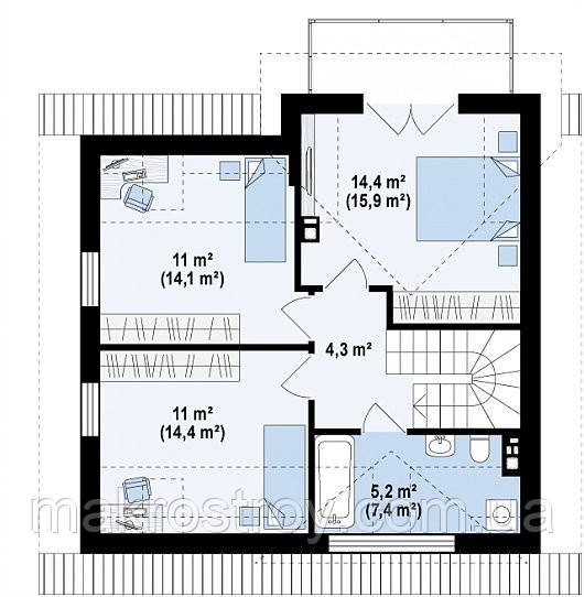
Цей проєкт розроблений для комфортного проживання сім'ї з 4 осіб. На першому поверсі є кухня — вітальня з виходом на терасу. Вигідним відрізом цього дому є вітражне скління, наявність балкона. Терраса частково інтегрована в конструкцію дому, це робить її комфортною практично за будь-яких погодних умов. Другий поверх розмістив у собі просторий санвузел, спальню батьків і дві дитячі. Вартість будівництва можна дізнатися звернення до нас в архітектурний відділ.



Характеристики
| Основні | |
|---|---|
| Проектування котеджних селищ | Так |
| Типи будівель по матеріалу | Комбіновані, Цегляні, Пористо - бетонні, Дерев'яні |
| Тип будівлі | Мансардний |
| Користувальницькі характеристики | |
| Кут нахилу даху | 40 Градусы |
| Спалень | 3 |
| Гараж | - |
| Висота стелі | 2.7 |
| Загальна площа | 109.4 |
| Санвузлів | 2 |
| Поверхів | 1+мансарда |
| Висота будинку | 7.94 |
| Житлова площа | 99.2 |
| Вартість будівництва | - |
Інформація для замовлення
- Ціна: від 29 800 ₴











