|
Площа житлова/загальна |
170,70 м2 / 227,80 м2
|
|
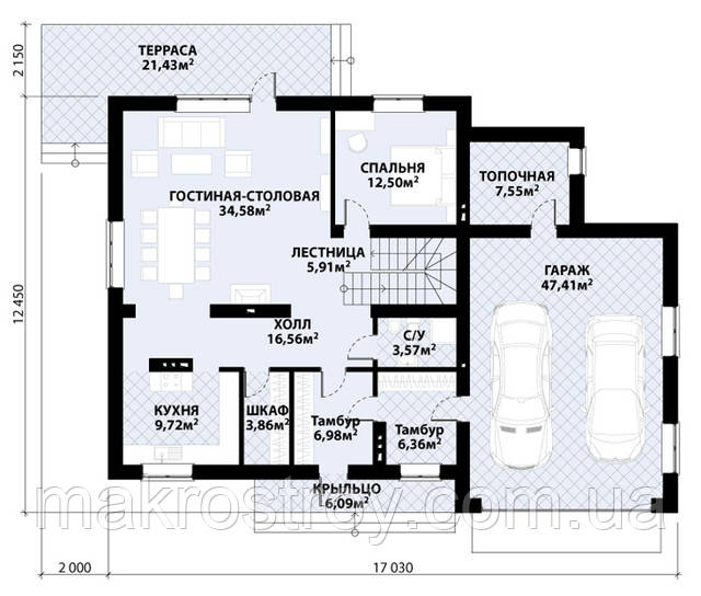
Площа першого поверху |
148,40 м2
|
|
Площа другого поверху |
79,40 м2
|
|
Площа гаража |
46,00 м2
|
| Площа підвала | |
|
Висота |
8,60 м
|
|
Габарити ділянки |
шир. 17,64 м х дл. 22,74 м
|
|
Кут нахилу даху |
22,00° |
|
Внесення змін |
можливо |
|
Ціна будівництва |
≈ 1 418 750,00 грн |
|
Вартість проекту |
14 000,00 грн |
|
Фундамент |
стрічковий блоковий, монолітний залізобетонний |
| Стіни | газобетон |
|
Перекриття |
залізобетонні плити, монолітне, круглопустонні плити, монолітне залізобетонне, дерев'яними балками |
|
Дах |
металочерепиця, цементно-піщана черепиця, керамічна черепиця |
| Основні | |
|---|---|
| Проектування котеджних селищ | Так |
| Типи будівель по матеріалу | Цегляні |
| Тип будівлі | Двох поверховий |
- Ціна: від 37 000 ₴












