


Котедж являє собою прямокутний у плані обсяг 13 х 11.4 м з еркером . На першому поверсі розміщений гараж, тамбур, хол, кухня-столова, вітальня, сан. вузол, кальний. З тамбура можна потрапити в гараж розташований на відм -0.450.
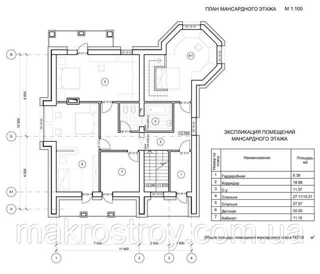
По сходах можна потрапити на другий поверх, на якому розміщені: коридор, батьківська спальня, дитяча гостьова дворівнева спальня в еркері, модернобна, санвузел.
Стіни виготовлені з багатошарових теплоефективних блоків 400х400х200 мм. Перекриття металевими балками.Також можливий варіант перекриття зі збірних плит. Драбина на мансарду металевими косоурами. Криша виготовлена дерев'яними стропильними ногами, покриття — металочерепиця по дерев'яній обрітці. Вікна — металопластикові. Двері зовнішні — металеві, внутрішні дерев'яні або металопластикові. Підлоги дерев'яні, ламінат, у санвузлах і кухні — керамічна плитка. Майданчики під автомобіль- тротуарна плитка з лялькою
Це проєкт удома з мансардою і з гаражем. Його можна віднести до підвиду будинків із мансардою, оскільки правильніше їх називати вдома з житловим чорничним простором. Висота стін на мансардному поверсі та кут нахилу покрівлі в таких проєктах набагато менше, ніж у традиційних будинках із двоскатною покрівлею. А тому, якщо в мансардному будинку з двоскатною покрівлею площа другого поверху трохи менша за перший, то в будинках цієї категорії площа другого поверху майже вдвічі менша.
Переважно такі будинки мають площу понад 200 кв.м. Оскільки за меншої площі використання підліжкового простору буде неможливим.
Основні показники
|
Площа житлова/загальна |
160,99м2 / 280,65 м2
|
|
Площа першого поверху |
132,73 м2 |
|
Площа другого поверху/мансарда |
132.73/147,92 м² |
|
Площа гаража |
31,60 м2 |
| Площа підвала | |
|
Висота |
11,8 м |
|
Габарити ділянки |
шир. 20,00 м х довг. 60,0м |
|
Кут нахилу даху |
25,00° |
|
Внесення змін |
можливо |
|
Ціна будівництва |
≈ 1 762 500,00 грн |
|
Вартість проекту |
14600,00 грн |
|
Фундамент |
стрічковий блоковий, монолітний залізобетонний |
| Стіни | газобетон, облицювальна цегла |
|
Перекриття |
залізобетонні плити, монолітне, круглопусті плити, монолітне залізобетонне, дерев'яними балками |
|
Дах |
металочерепиця, цементно-піщана черепиця, керамічна черепиця |
| Основні | |
|---|---|
| Типи будівель по матеріалу | Цегляні |
| Проектування котеджних селищ | Так |
| Тип будівлі | Мансардний |
| Користувальницькі характеристики | |
| Країна виробник | Україна |
- Ціна: 24 600 ₴










