MS102 — це проєкт дому з мансардою. Загальна площа будинку становитиме 200 м2, чого цілком вистачить для комфортного проживання великої родини. Проект MS102 належить до категорії проєктів будинків із мансардою та гаражем; проєкт передбачає вбудований гараж для паркування одного автомобіля, де можна розмістити стелажі, столи та шафки. Родзинка проєкту — двобічний камін, один бік якого виходить на вулицю, а інший у дім. На задньому дворі можна влаштовувати барбекю, а в будинку просто насолоджуватися затишком від домашнього вогнища.
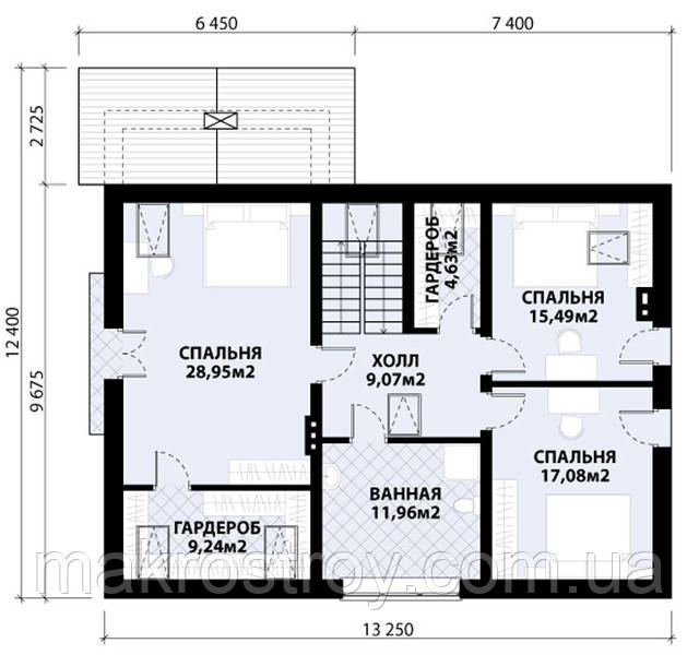
Крім гаража, на першому поверсі приватного дому з мансардою є передпокій, хол, кухня з коморі, санвузол, простора вітальня, котельна та житлова кімната. На другому поверсі містяться спальні, гардеробні та ванна кімната.
Освітлення практично всіх приміщень у денну пору відбувається завдяки великим вікнам у підлогу, скляним дверям і мансардним вікнам на другому поверсі.



Основні показники
|
Площа житлова/загальна |
166,30 м2 / 202,68 м2
|
|
Площа першого поверху |
106,26 м2
|
|
Площа другого поверху |
96,42 м2 |
|
Площа гаража |
23,30 м2
|
| Площа підвала | |
|
Висота |
8,30 м
|
|
Габарити ділянки |
шир. 17,40 м х дл. 19,60 м |
|
Кут нахилу даху |
40,00° |
|
Внесення змін |
можливо |
|
Ціна будівництва |
≈ 1 262 500,00 грн |
|
Вартість проекту |
13800,00 грн |
|
Фундамент |
стрічковий блоковий, монолітний залізобетонний |
| Стіни | газобетон |
|
Перекриття |
залізобетонні плити, монолітне, круглопустонні плити, монолітне залізобетонне, дерев'яними балками |
|
Дах |
металочерепиця, цементно-піщана черепиця, керамічна черепиця |
| Основні | |
|---|---|
| Типи будівель по матеріалу | Цегляні |
| Проектування котеджних селищ | Так |
| Тип будівлі | Мансардний |
| Користувальницькі характеристики | |
| Країна виробник | Україна |
- Ціна: 27 500 ₴





